Segundo grupo de aeropuertos de provincia de la República del Perú

Comité en proyectos de infraestructura y de servicios públicos - PROINVERSION

Cliente

Aeropuertos

Área

Perú

Ubicación

2008/2010

Año


Tipo de trabajo realizado

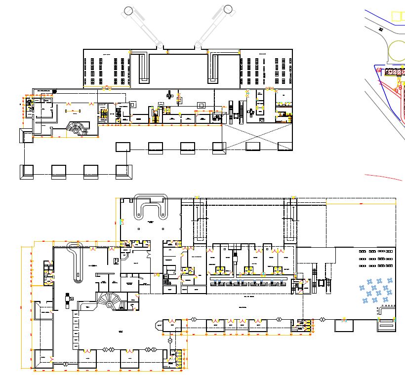
Diagnóstico de la situación actual de la infraestructura de los aeropuertos (Andahuaylas, Ayacucho, Tacna, Arequipa, Juliaca y Puerto Maldonado). Incluirá los aspectos sanitarios, eléctricos, estructurales, campo aéreo y seguridad operacional.
Propuesta de alternativas técnicas de solución, teniendo como referencia a los Planes Maestros Conceptuales.
Aprobación de los expedientes técnicos, por parte del MTC, efectuando las aclaraciones, modificaciones o ampliaciones que sean necesarias.
Elaboración de estudios de preinversión a niveles de perfil, prefactibilidad y factibilidad, para obtener la viabilidad en el marco del SNIP, para cada uno de los aeropuertos analizados, efectuando las aclaraciones, modificaciones o ampliaciones que sean necesarias a requerimiento del MTC.

Objetivo general del Estudio:
De acuerdo a los TDR, el estudio tiene como objetivo general, elaborar los expedientes técnicos y los estudios de preinversión de obras identificadas y equipamiento necesario en los aeropuertos, así como los estudios de prefactibilidad y factibilidad en el marco del SNIP.